городской округ Троицк

Геологоразведочные работы на станции метро «Ватутинки»
Нанотехнологическое решение с лужей в Троицке

Нанотехнологическое решение с лужей в Троицке

Специалисты ЖКХ в Троицке, или взяли мастер-класс коллег из Солнцево, или пригласили их на место для решения сложнейшего вопроса.

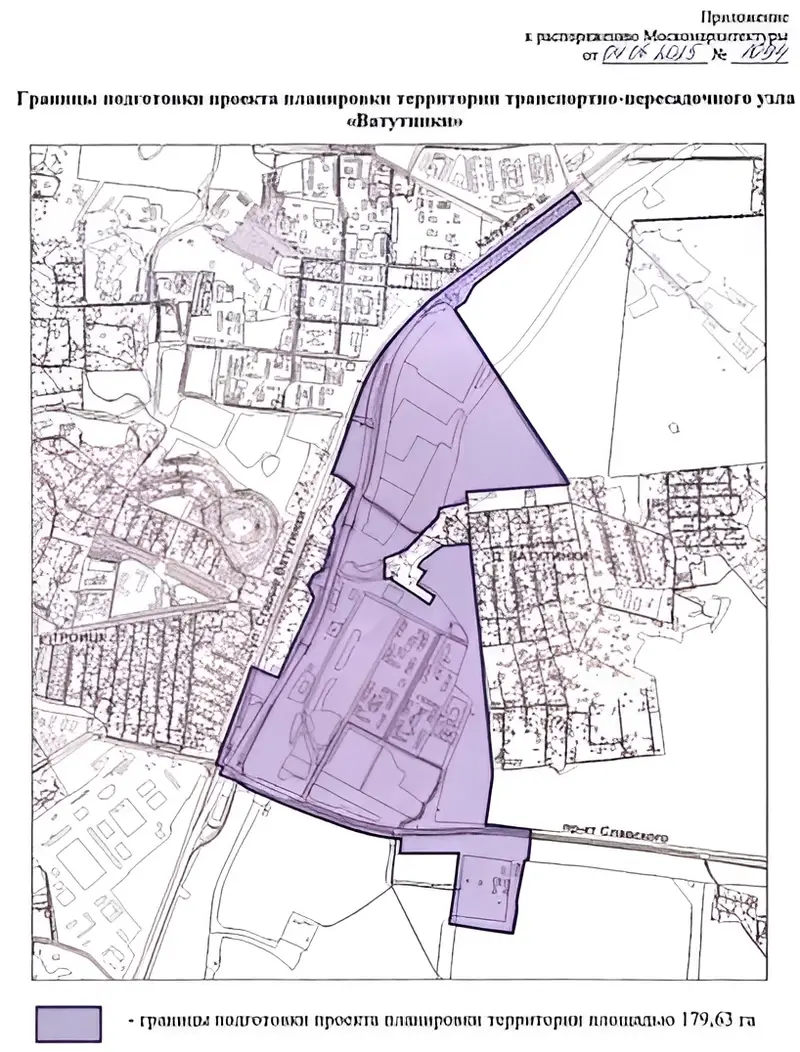
Где на Калужском шоссе расположится новый ТПУ Ватутинки

Где на Калужском шоссе расположится новый ТПУ Ватутинки

В 2025 году будет подготовлен проект планировки территории ТПУ «Ватутники» в Новой Москве, рядом с одноименной станцией метро Троицкой линии.